Archives du Cantal
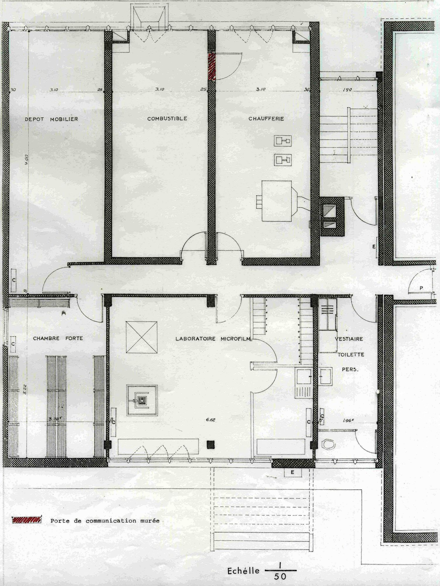
60 Fi 45, Plan du sous-sol
Cote
Date
Description physique
Document iconographique Noir et blanc, 29,5 x 42 cm, échelle : 1/50
Commentaire

Décidée en 1952 par le préfet, la construction d'un nouveau bâtiment pour les Archives départementales fait l'objet d'un concours en 1953 ; les adjudications ont lieu en 1954. Le bâtiment est terminé en novembre 1956, ouvert au public en février 1957 et inauguré le 19 janvier 1958.

Mots-clés lieu
  • Aurillac (Cantal, France) -- Rue du 139e Régiment d'Infanterie
  • Aurillac (Cantal, France) -- Archives départementales
Mots-clés matière
Permalien de la notice
Partager la page